スマーレの戸建賃貸住宅という選択肢

PART1

現在土地をお持ちで「どうしよう?」とお悩みの方

土地の広さや用途に応じて選択できる2in1の戸建賃貸住宅オーナーとなるメリット

  • 安定的な賃金収入を見込める

  • 賢い税金対策

  • 円滑な相続対策の実現

PART2

安定的な賃金収入はどうして生まれる?

低額の投資と選ばれる戸建が安定収入の鍵

PART3

賢い税金対策に!

  • 戸建賃貸住宅

  • にすることで
  • 固定資産税

  • を下げることが可能に

空き地のような雑種地は固定資産税・都市計画税などの税金の負担は大きいものになります。
不動産を持つことにより、立地・所有の方法などでの評価が大幅に変わります。
対策をしっかりすることにより「固定資産税」「都市計画税」「相続税」の評価額を下げることが可能な場合があります。

PART4

円満な相続対策を実現

減税だけではない!相続トラブルを回避することが可能です

  • 分割不可能

  • 分割不可能

複数の相続人で分割

不動産の場合、現金とは違い「財産額の評価がしにくく、分割しにくい」という性質があります。
資産が自宅の土地のみで、そこに長男が住んでいるという場合、長男が兄弟に自宅資産の半分相当を渡さなければならないが現金がない…とお困りになるケースも増えております。
複数の相続人がいる場合でも、スマーレの戸建賃貸住宅の商品であれば2棟が独立しているため、土地と建物をしっかり分割でき。円満な相続の実現が十分可能となります。

商品ラインナップ

1スマーレ Type-1

【外観】

【内観】

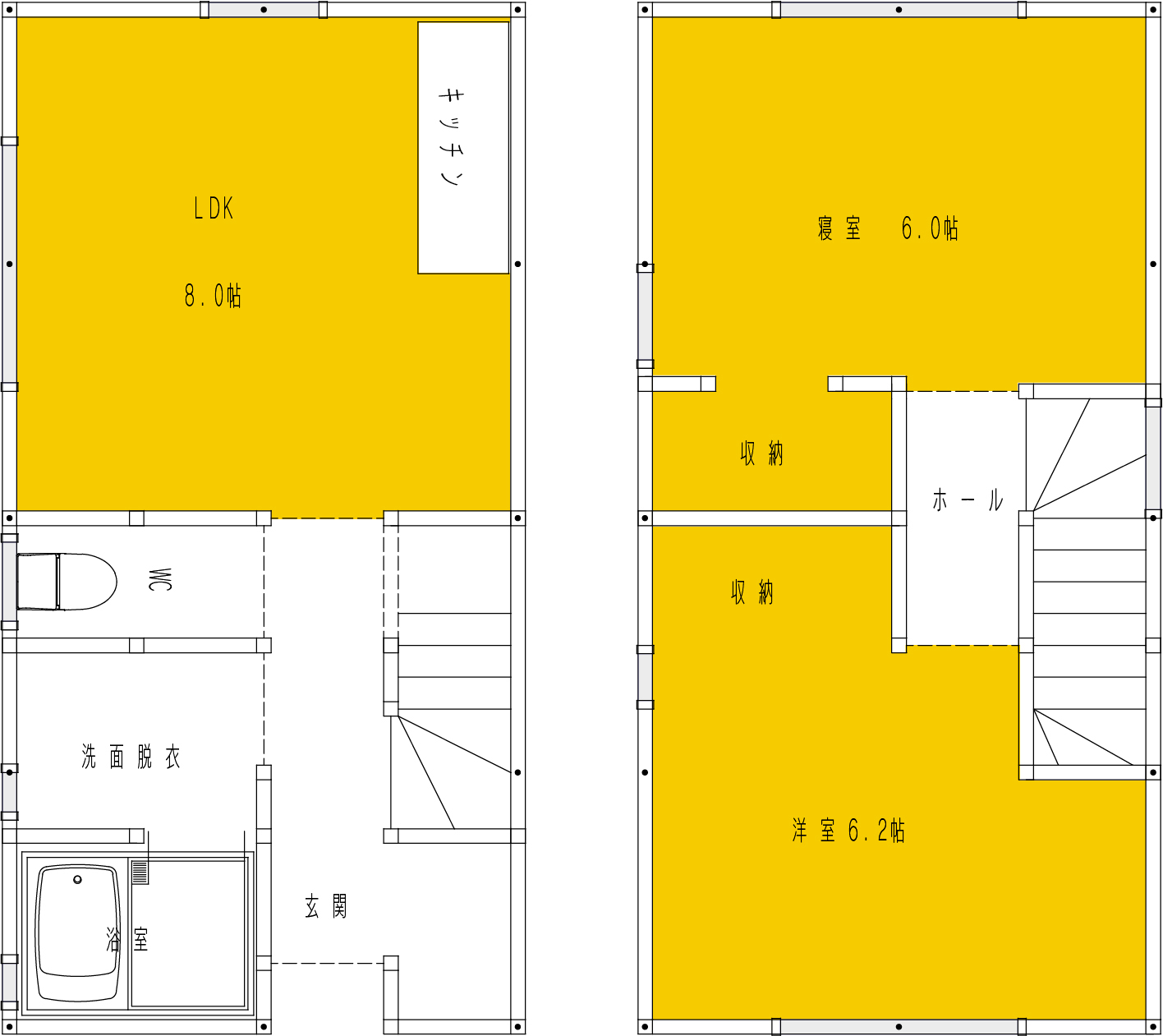
【間取り】

【基本情報】

建物価格
650万円(税抜)
タイプ
一戸建
坪数
16坪
間取り
1LDK 〜 2LDK
1階面積
26.5㎡
2階面積
26.5㎡

基本スタイルの2LDK(2〜3名向け)コンパクトで狭小地にも配置できます。土地効率に優れ、利用者の人気も高い商品です。

その他お取り扱い商品

  • ism-Style 貸すも、住むも、カスタムも cusmo カスモ
  • Life Design rented house unicube ユニキューブ

ご相談やお問い合わせは電話でも承ります。

受付9:00 - 18:00(水曜日定休日)0765-24-5661